Regulamento Interno de licitações Portal de licitações
Publicado em: 29/11/2022

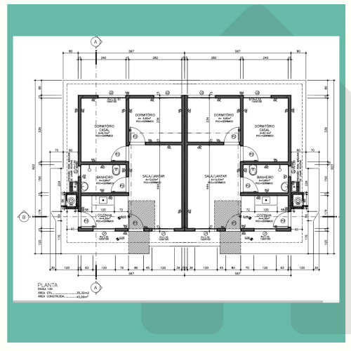
A Companhia Municipal de Habitação de Cascavel, informa que está com processo de licitação aberto para a construção de 6 (seis) unidades de habitação unifamiliar que serão construídas no endereço: Lote 013C da Quadra 012A do Loteamento Novo Mundo, Rua Berlin, nº 337, Bairro Cascavel Velho.

As informações referentes ao certame podem ser acessadas no endereço:

https://cascavel.atende.net/transparencia/item/licitacoes-gerais

A Licitação será realizada de forma presencial, no modo de disputa fechado.

Modalidade: Pregão presencial n° 06/2022

Critério de julgamento: Menor preço global

O regime de execução:  Empreitada por Preço Global

Abertura da sessão: 13/12/2022 - 09h30 na Prefeitura Municipal de Cascavel Rua Paraná, 5000 - 2º andar